$1,590,000
4,178
SQ FT
$381
SQ/FT
590 Pleasant Avenue
@ Chalk Hill - Windsor, Santa Rosa
- 4 Bed
- 3 Bath
- 10 Park
- 4,178 sqft
- Santa Rosa
-
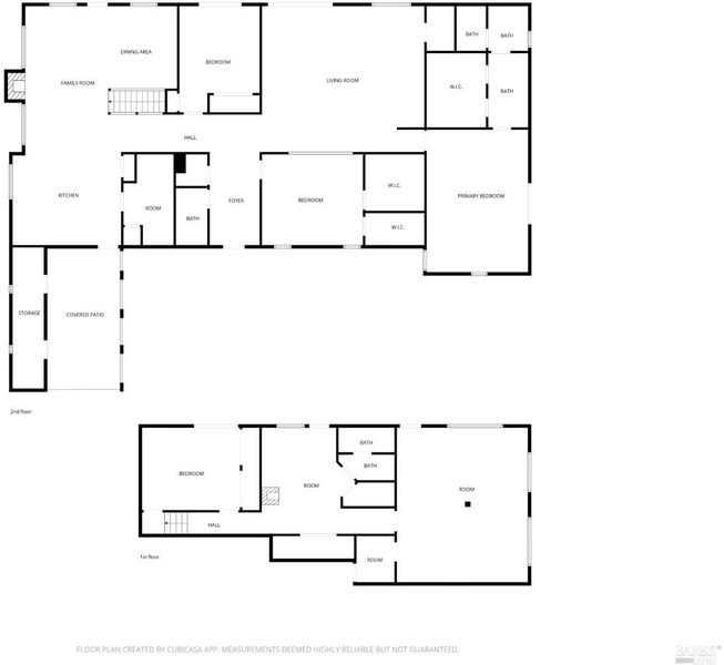
Welcome to the Shiloh Vineyard estate. This property presents a rare opportunity to reimagine a spacious 4,178+/-sf main structure on over 7 acres of rolling meadow and vineyards with breathtaking sunset views. The home is known to be very well built with signature engineering elements like low voltage switching, spray in wall insulation, heated floors in garage conversion, the use of pool water to cool the home, the design of the above ground pool has been extremely effective in preventing plaster cracking, and more. There are also two additional assessory structures on the property. One is a tunnel dehydrator used back in the day for drying prunes totaling about 737+/-sf and a 1,200+/-sf multi-purpose building. Property also has ample on-site water storage. Nestled in Sonoma County's world-class wine country, the property offers a tranquil setting, natural beauty, and lots of long-term potential. The on-site vines are professionally managed and maintained under an agricultural lease, blending lifestyle and agricultural benefits seamlessly without the cost. The estate includes a main residence ready for your vision to come to life with renovations already underway like the kitchen being demoed, acoustic ceilings scraped, some flooring and sheetrock removed. There is also an outbuilding offering a blank slate to create a separate space, a rustic barn, and ample room for expansion perfect for contractors, investors, or buyers looking to craft a custom wine country retreat. Conveniently located just minutes from Windsor and Santa Rosa, the property provides easy access to Highway 101, top-rated schools, shopping, dining, and daily amenities. Santa Rosa serves as the gateway to Sonoma County's celebrated wine regions and vibrant downtown, with restaurants, cultural attractions, and local charm nearby. This is a rare chance to transform a vineyard-view estate in a highly desirable location offering rural tranquility with the convenience of town nearby, ideal for a private estate, investment project, or dream wine country home.
- Days on Market
- 16 days
- Current Status
- Active
- Original Price
- $1,590,000
- List Price
- $1,590,000
- On Market Date
- Mar 26, 2026
- Property Type
- Single Family Residence
- Area
- Windsor
- Zip Code
- 95403
- MLS ID
- 326024832
- APN
- 163-180-016-000
- Year Built
- 1981
- Stories in Building
- Unavailable
- Possession
- Close Of Escrow
- Data Source
- BAREIS
- Origin MLS System
Mattie Washburn Elementary School
Public K-2 Elementary
Students: 395 Distance: 1.0mi
Manzanita Montessori Charter
Charter 1-6
Students: NA Distance: 1.1mi
Sonoma Country Day School
Private K-8 Elementary, Coed
Students: 295 Distance: 1.7mi
San Miguel Elementary School
Charter K-6 Elementary
Students: 438 Distance: 2.0mi
Windsor Middle School
Public 6-8 Middle
Students: 841 Distance: 2.2mi
Bridges Community Based School North County Conso
Public K-12
Students: 46 Distance: 2.3mi
- Bed
- 4
- Bath
- 3
- Parking
- 10
- Covered, Garage Facing Front, Uncovered Parking Space
- SQ FT
- 4,178
- SQ FT Source
- Assessor Agent-Fill
- Lot SQ FT
- 310,147.0
- Lot Acres
- 7.12 Acres
- Pool Info
- Above Ground, Pool Cover
- Cooling
- Ceiling Fan(s)
- Fire Place
- Family Room
- Heating
- Fireplace(s)
- Laundry
- Hookups Only
- Main Level
- Bedroom(s), Family Room, Full Bath(s), Kitchen, Living Room, Primary Bedroom, Partial Bath(s), Street Entrance
- Views
- Vineyard
- Possession
- Close Of Escrow
- Basement
- None
- Fee
- $0
MLS and other Information regarding properties for sale as shown in Theo have been obtained from various sources such as sellers, public records, agents and other third parties. This information may relate to the condition of the property, permitted or unpermitted uses, zoning, square footage, lot size/acreage or other matters affecting value or desirability. Unless otherwise indicated in writing, neither brokers, agents nor Theo have verified, or will verify, such information. If any such information is important to buyer in determining whether to buy, the price to pay or intended use of the property, buyer is urged to conduct their own investigation with qualified professionals, satisfy themselves with respect to that information, and to rely solely on the results of that investigation.
School data provided by GreatSchools. School service boundaries are intended to be used as reference only. To verify enrollment eligibility for a property, contact the school directly.





















































































